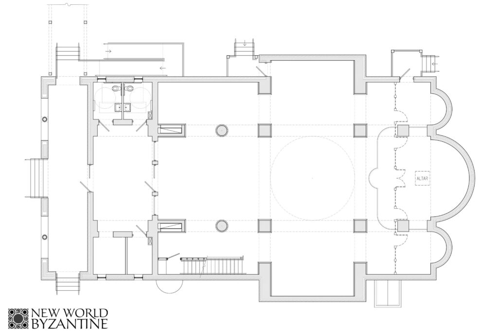
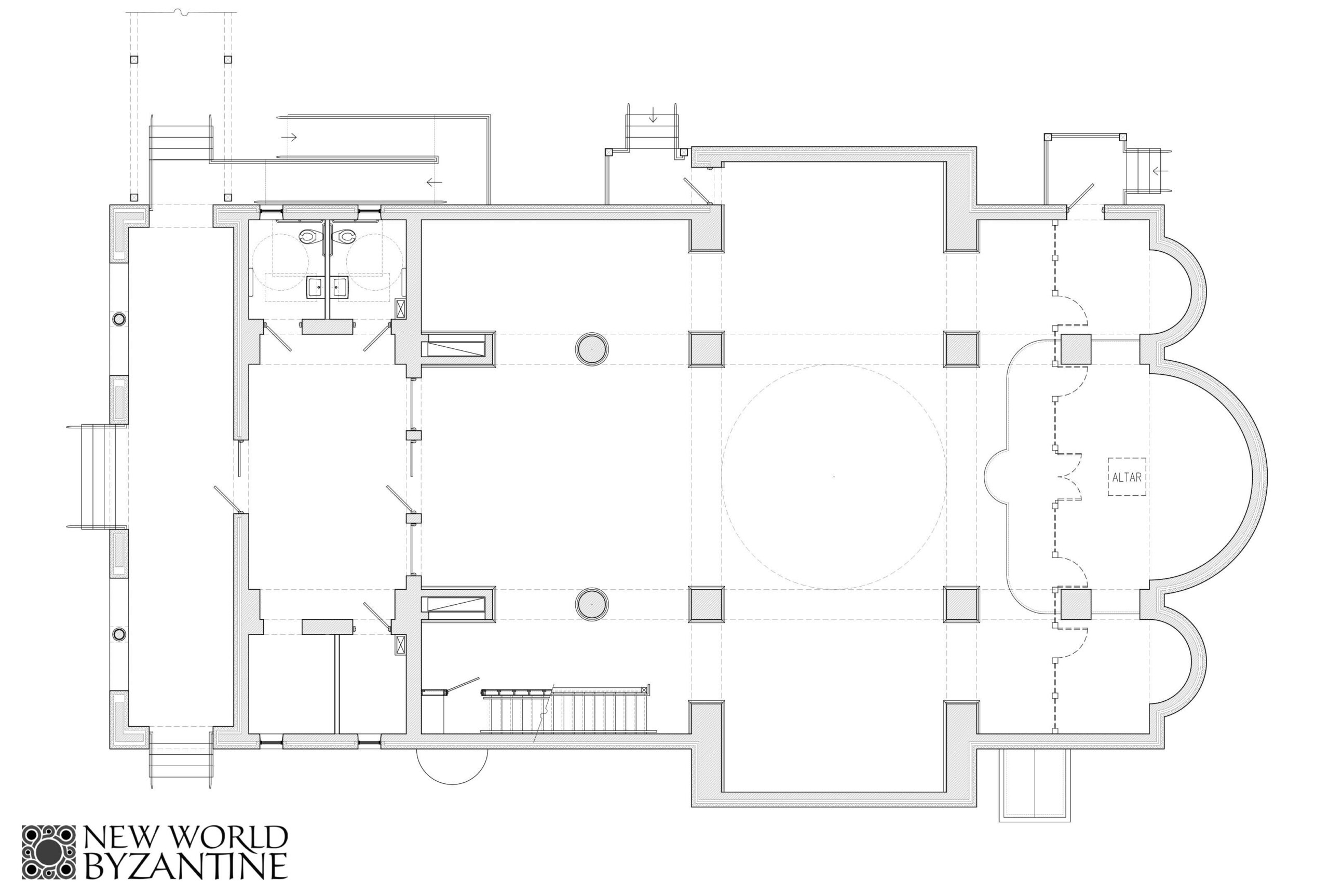
Holy Ascension, Albion, MI
Holy Ascension Orthodox Church has worshipped in a simple wooden chapel since 1916, but in recent years, they've outgrown that space. They asked Andrew to design a new church for 300 people. The design is clad in natural-cleft limestone with brick trim - detailing inspired by historic industrial structures in Michigan. The interior features monumental columns that can be painted with iconographic figures, and a wraparound balcony for maximum occupancy and spatial interest.
Designed in 2025, in association with a local architect-of-record.
